Аренда: офисное помещение в центральной локации!

Донецк (ДНР) / Ворошиловский
1000 рублей за 1м2
Операция
Аренда
Назначение
Офисное
Кол-во комнат
8
Площадь
373
Этаж
2
Статус объекта
Свободен

ID объекта: 335
Контакт: +79493058118 Анна

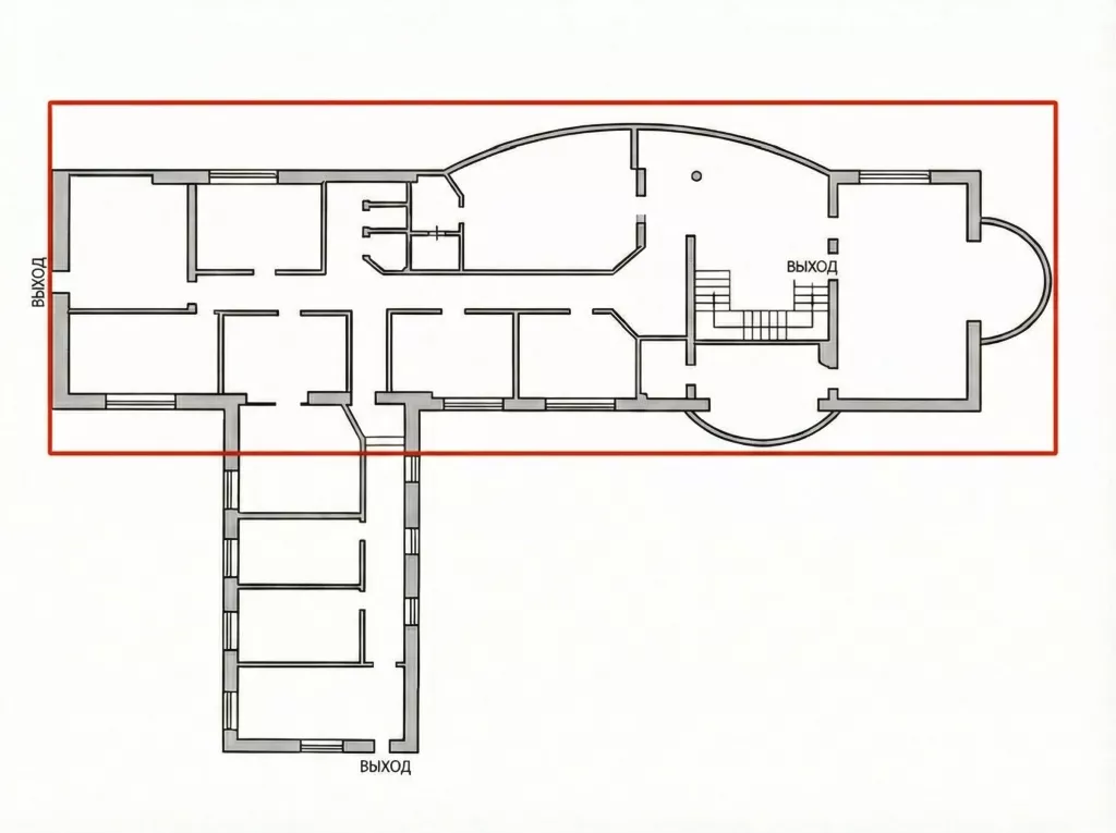
Предлагаются к аренде офисные помещения, в отличной локации, с удобной транспортной развязкой / Золотое кольцо

 

Основные характеристики:

 

* Площадь : 373м² / 8 кабинетов

* Расположение: ул.Первомайская / Отдельный вход

* Все коммуникации:

- Отопление (электрический котел)

- Водоснабжение регулярное (накопитель 3т.)

- Сплит-система 

* Собственная парковка / Пропускная система

* Документы РФ

 

Цена аренды: 1000₽ / м²

 

По всем вопросам и просмотру звоните по номеру +7(949)509-36-36 Владислав АН«АНКОР»

Подберите мне квартиру!

Оставьте заявку или позвоните нам по телефону +7 (949) 305-81-18